P41X、P42X快速排(吸)氣閥
P41X、P42X系列快速排(吸)氣閥適用于工作介質為水的管路上,以提高輸送水設備的效率和保護管道不致變形破裂,是管道的必備之設備。快速排氣閥是用于壓力輸送水管道的排氣。
產品概述

P41X、P42X系列快速排(吸)氣閥適用于工作介質為水的管路上,以提高輸送水設備的效率和保護管道不致變形破裂,是管道的必備之設備。快速排氣閥是用于壓力輸送水管道的排氣。

產品特點
能夠排除管道中的氣體,養活阻力,節約能源。 使用壽命長,安全可靠。
排氣能力是普通雙口排氣閥的多倍。
當管道負壓時,本產品能快速自動吸氣,防止管道破裂。
浮球為不銹鋼,
技術參數
1.介質:清水
2.溫度:0-80℃
3.殼體溫度試驗壓力:
4.閥體材料:鑄鐵
5.浮球:不銹鋼
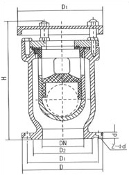
主要尺寸
| 公稱通徑 (mm) | 尺寸(mm) | |||||
|---|---|---|---|---|---|---|
| H | D | D0 | D1 | D1 | Z-фd | |
| 50 | 270 | 160 | 200 | 125 | 125 | 4-14 |
| 65 | 270 | 180 | 200 | 145 | 145 | 4-18 |
| 80 | 330 | 195 | 230 | 160 | 160 | 4-18 |
| 100 | 350 | 215 | 250 | 180 | 180 | 8-18 |
| 150 | 450 | 280 | 300 | 240 | 240 | 8-23 |
| 200 | 470 | 335 | 330 | 295 | 295 | 8-23 |
上歐服務承諾
(1) 嚴格按照合同要求,提供符合設計標準,質量合格的產品。
(2) 嚴格檢查和控制原材料、原器件、配套件的進廠質量。
(3) 保證所供設備加工工藝完善、檢測手段完備。產品絕不帶缺陷出廠。
(4) 對涉及分包商的供貨、質量、設備性能、技術接口、服務等方面問題全部責任。按合同規定的關鍵部件必須符合有關資質的要求,并經需方認可。
(5) 按合同規定向監造單位提供有關部門標準和圖紙,并為監造提供方便并對監造設備的停工待檢部位提前7天通知需方及監造代表,需方所派監造是督促我方按標準生產合格產品,但并不減我方的一切質量責任。
(6) 對設備制造過程中出現的質量缺陷及時向需方和監造代表通報、不隱瞞。若設備缺陷超過合同規定的標準,供方無條件更換。在安裝和試運行過程中,設備出現質量問題,先處理問題,再分清責任,一切以滿足工程進度需要為準則。
(7) 為所供的設備在制造、運輸、裝卸過程中投保,-旦發生意外,我方將按需要對所供設備盡快進行免費更換、修理,直到需方滿意為止。
(8) 在開箱過程中如發現缺件及其他原因引起的零部件丟失,我方負責盡快免費補齊所缺零部件。在設備的安裝、調試過程中以及今后在設備運行中發現的質量問題,如屬我方原因,我方承擔責任。
(9) 按時向需方提供按合同規定的全部技術資料和圖紙。有義務在必要時邀請需方參與我方的技術設計審核。
(10) 按需方要求的時間到現場進行技術服務,指導需方按我方的技術資料和圖紙的要求進行安裝、試運行及試生產。
(11) 對于需方先購的與合同設備有關的配套設備,我方主動提供滿足設備接口要求的技術條件和資料。
(12) 嚴格執行供需雙方就有關問題召開會議的紀要或協議。
(13) 按合同規定免費為需方舉辦有關設備安裝、調試、使用、維護技術的業務培訓班。
(14) 加強售前、售中、售后服務,把"24小時服務"、"超前服務"、"全過程服務"、 "終身服務"貫徹在產品制造、安裝、調試、大修的全過程。
(15) 接到需方反映的質量問題信息后,在24小時之內作出答復或派出服務人員,盡快到達現場,做到用戶對質量不滿意,服務不停止。
(16) 免費為產品提供終身維護,凡我廠用戶,均建立了詳盡的用戶檔案,我廠售后服務。人員實行定期回訪,巡視制度,指導用戶的日常維護,及時指出并解決可能出現的故障。
(17) 隨時滿足需方對備品備件的要求,終身為用戶提供質優價廉的零配件。
相關新聞
|
||||||||||||||||||||||||
![]() |
||||||||||||||||||||||||
| ||||||||||||||||||||||||









