產品概述
Q941M、Q941F電動高溫球閥PN16閥體設計采用國際流行的一體式結構,比二瓣式球閥中部減少泄漏點。閥桿采用倒裝雙密封,完全避免泄漏。閥桿處密封填料、調整墊,均采用回彈性強、耐溫、耐磨,耐壓、耐腐蝕、自潤滑性能良好、無毒型高新復合材料。電動高溫球閥可替代閘閥、排污閥、柱塞閥、截止閥使用,便于原管道閥門的更換安裝。我公司生產有多種結構長度的球閥,可滿足用戶的各種需求。
Q941M電動高溫球閥中的球體密封圈采用了特殊的加工工藝和最新密封材料,使球體表面粗糙度和圓度達到標準要求,從而提高了密封性能和使用壽命、耐高溫的能力。順時板動手柄帶動閥桿驅動球體旋轉,使介質順利通過。
性能參數
Q941M、Q941F電動高溫球閥PN16主要性能參數
| 型號 | 公稱壓力 (MPa) | 強度試驗壓力 (MPa) | 密封試驗壓 (MPa) | 適用溫度 (℃) | 適用介質 |
|---|
| Q41M/F-16C/P | 1.6 | 2.4 | 1.8 | -28~+600 (M/F) | 導熱油、水、蒸汽、氣體、油品、硝酸類腐蝕性介質、醋酸類腐蝕性介質 |
| Q41M/F-16C/P | 2.5 | 3.8 | 2.8 | -28~+600 (PPL) |
零部件材料
Q941M、Q941F電動高溫球閥PN16主要零部件材料| 序號 | 零部件名稱 | 材料 |
|---|
| 1 | 閥體 | 球墨鑄鐵、碳素鋼、鑄不銹鋼、304、316 |
| 2 | 密封圈 | (M/F)高強度耐磨碳結石墨≤300℃ (PPL)對蒞聚苯、溫度≤350℃ |
| 3 | 球 | 不銹鋼 |
| 4 | 填料 | 聚四氟乙烯 |
| 5 | 填料壓蓋 | QT450-10球墨鑄鐵 |
| 6 | 閥桿 | 碳素鋼、鉻不銹鋼 |
| 7 | 手柄 | 碳鋼 |
外形結構尺寸
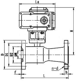
Q941M、Q941F電動高溫球閥PN16主要外形結構尺寸(mm)| 型號 | 規格 | 尺寸 |
|---|
| L | D | D 1 | D 2 | z-φd | H | b |
|---|
| Q941M/F-16 | 15 | 130 | 95 | 65 | 45 | 4-14 | 85 | 14 |
| 20 | 150 | 105 | 75 | 55 | 4-14 | 95 | 16 |
| 25 | 160 | 115 | 85 | 65 | 4-14 | 103 | 16 |
| 32 | 180 | 135 | 100 | 78 | 4-18 | 105 | 18 |
| 40 | 200 | 145 | 110 | 85 | 4-18 | 120 | 18 |
| 50 | 230 | 160 | 125 | 100 | 4-18 | 195 | 20 |
| 65 | 290 | 180 | 145 | 120 | 4-18 | 195 | 20 |
| 80 | 310 | 195 | 160 | 135 | 8-18 | 215 | 22 |
| 100 | 350 | 215 | 180 | 155 | 8-18 | 253 | 24 |
結構尺寸圖

安裝注意事項
1.安裝施工必須小心,切忌撞擊閥門。
2.安裝前,應將球閥作一檢查,核對規格型號,鑒定有無損壞,尤其對于閥桿。還要轉動幾下,看是否歪斜,因為運輸過程中,最易撞歪閥桿。還要清除閥內的雜物。
3.球閥起吊時,繩子不要系在手輪或閥桿上,以免損壞這些部件,應該系在閥體上。
4.對于球閥所連接的管路,一定要清掃干凈?捎脡嚎s空氣吹去氧化鐵屑、泥砂、焊渣和其他雜物。這些雜物,不但容易擦傷球閥的密封面,其中大顆粒雜物(如焊渣),還能堵死小閥門,使其失效。
5.安裝時要留有閥柄旋轉的位置。6.球閥不能用作節流。 7.帶傳動機構的球閥應直立安裝。